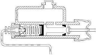
Brake System – NCVT ITI NIMI Mock Test MMVTest Brake System (ब्रेक प्रणाली) – NCVT ITI NIMI Mock Test MMV Theory 2nd Year Brake System - NCVT ITI NIMI Mock Test MMV Theory 2nd Year 1 / 351. Q. What is the type of brake? | चित्र में, किस प्रकार का ब्रेक सिस्टम है? A) Integral type brake | इनर्टनल टाइप ब्रेक B) Air assisted power brake | एयर एसिस्टिड ब्रेक C) Multiplier type brake | मल्टीप्लायर टाइप ब्रेक D) Pedal assisted type brake | पैडल एसिस्टिड 2 / 352. Q. What is the brake pedal free play range permitted while adjusting? | समायोजन करते समय ब्रेक पेडल फ्री प्ले रेंज की अनुमति क्या है? A) 4 mm to 8mm B) 8mm to 10 mm C) 6mm to 12 mm D) 13 mm to 18 mm 3 / 353. Q. What is the function of EBD (Electronic Brake - Force Distribution) in anti lock brake system? | एण्टीलाकिंग ब्रेक सिस्टम में EBD ( इलेक्ट्रोनिक ब्रेक डिस्ट्रीब्यूशन) का क्या उदेश्य है? A) It control the slip of the front wheel | फ्रन्ट व्हील को स्लीप होने से बचाना B) It controls the slip of the rear wheel | पिछले पहियों को स्लीप होने से बचाना C) It increase brake pressure to the rear wheel । पिछले पहियों का ब्रेक प्रैशर बढ़ाना D) It improve directional stability of vehicle | यह वाहन की दिशा निर्धारण स्टेबिलिटी का बढ़ाना 4 / 354. Q. What is the name of component used in the air brake system? | ब्रेक सिस्टम में चित्र में दिखाए गए भाग का क्या नाम है? A) Brake valve | ब्रेक वाल्व B) Unloader valve | अनलोडर वाल्व C) Slack adjuster | स्लेक एडजस्ट D) Pressure release valve | प्रैशर रीलिज वाल्व 5 / 355. Q. What is the name of part marked as 'x' in the vacuum assisted power brakes? | वेक्यूम एसिस्टिड पावर ब्रेक में, चित्र में 'x' दवारा दर्शाया गया है? A) Master cylinder | मास्टर सिलेण्डर B) Booster cylinder | बुस्टर सिलेण्डर C) Vacuum control valve | वेक्यूम कन्ट्रोल वाल्व D) Brake pedal linkage | ब्रेक पैडल लिंकेज 6 / 356. Q. What is the purpose of 'G' sensor? | 'G' सेन्सर क्या उदेश्य है? A) Locking pressure inside wheel cylinder | व्हील सिलेण्डर में अन्दरूनी लॉकिग प्रैशर B) Measuring deceleration rate of vehicle | वाहन की मंदी दर को मापने C) Reduce pressure at wheel cylinder | व्हील सिलेण्डर का प्रेशर कम करना D) Detect wheel lock up condition | व्हील लॉक अप स्थिति का पता करना 7 / 357. Q. What is the type of wheel cylinder? | चित्र में किस प्रकार का व्हील सिलेण्डर दिया गया है? A) Double piston with straight bore | डबल पिस्टन सीधे बोर के पास B) Single piston wheel cylinder | सिंगल पिस्टन व्हील सिलेएडर C) Double piston with step bore | डबल पिस्टन स्टेप बोर के साथ D) Baffle type piston wheel cylinder | बैफल टाइप पिस्टन व्हील सिलेण्डर 8 / 358. Q. What is the type of master cylinder? | निम्न चित्र में, किस प्रकार का मास्टर सिलेण्डर है? A) Single barrel master cylinder | सिंगल बेरल मास्टर सिलेण्डर B) Tandem master cylinder | टेण्डम मास्टर सिलेण्डर C) Tank type master cylinder | टैंक टाइप मास्टर सिलेण्डर D) Centre feed master cylinder | सेंटर फीड मास्टर सिलेण्डर 9 / 359. Q. What is the material constituent of semi metalic brake lining? | सेमी मेटालिक ब्रेक लाइनिग कौन सी धातू का मिश्रण होता है? A) Carbon fiber | कार्बन फाइबर B) Aluminium oxide | एल्यूमिनियम ऑक्साइड C) Fine polished steel wool | फाइन पोलिस्ड स्टील वूल D) Carbon composite | कार्बन मिश्रण 10 / 3510. Q. What is the type of brake system? | चित्र में, किस प्रकार का ब्रेक सिस्टम है? A) Drum brake | ड्रम ब्रेक B) Vacuum assisted brake | वेक्यूम एसिस्टिड ब्रेक C) Disc brake | डिस्क ब्रेक D) Hydraulic brake | हाइड्रोलिक ब्रेक 11 / 3511. Q. What is the purpose of brake proportioning valves in the braking system? | बेंकिग सिस्टम में ब्रेक प्रोपरनेटिंग वाल्व का क्या उदेश्य है? A) Reduces brake pedal effort | ब्रेक पैडल शक्ति का घटना B) Increase braking efficiency | ब्रेकिंग दक्षता बढ़ाना C) Provide balanced braking | बेलेसिंग ब्रेकिंग देना D) Prevent front wheel lockup | अगले पहिए को लॉक अप से रोकना 12 / 3512. Q. What is the name of part marked as 'x' in the drum brake system? | ड्रम ब्रेक सिस्टम में, चित्र में, 'x' दवारा दर्शाए गए भाग का क्या नाम है? A) Brake shoe | ब्रेक शू B) Wheel cylinder | व्हील सिलेण्डर C) Back plate | बेक प्लेट D) Shoe hold dowel pin | शू होल्ड डावल पिन 13 / 3513. Q. What is the permitted brake pedal travel in the hydraulic brake system? | हाइड्रोलिक ब्रेक सिस्टम में निर्धारित ब्रेक पैडल ट्रैवल कितना है? A) 2 to 12 mm | 2 से 12 mm B) 6 to 12 mm | 6 से 12 mm C) 7 to 12 mm | 7 से 12 mm D) 9 to 12 mm | 9 से 12 mm 14 / 3514. Q. What is the name of part marked as 'X' in the brake pedal assembly? | निम्न चित्र में, ब्रेक पैडल एसेम्बली में 'x' द्वारा दर्शाया गया क्या है? A) Clevis | क्लेविस B) Lock nut | लॉक नट C) Pedal | पैडल D) Push rod | पुश रोड 15 / 3515. Q. Which material is used for brake rotors and brake pads for aircraft and racing cars? | एयरक्राफ्ट और रेसिंग कारों के लिए ब्रेक रोटर्स और ब्रेक पैड के लिए किस सामग्री का उपयोग किया जाता है? A) Sintered alloy | सिन्टरड एलॉय B) Carbon fiber reinforced carbon composite | कॉर्बन फाइबर रेनफोर्ड कार्बन सहित C) Asbestos | एस्बास्टॉस D) Copper, brass, steel | कॉपर, ब्रॉस 16 / 3516. Q. What is the name of brake adjuster? | चित्र में. ब्रेक एडजस्टर का क्या नाम है? A) Slack adjuster for 'S' cam brake | स्लेक एडस्टर एस केम ब्रेक B) Wedge type brake adjuster | वेज टाइप ब्रेक एडस्टर C) Serrated wheel brake adjuster | अलग-अलग व्हील ब्रेक एडस्टर D) Snail and cam type adjuster | स्नेल और कैम टाइप एडस्टर 17 / 3517. Q. Which device detect the driven wheel spin through sensor? | कौन सी डिवाइस से व्हील की गति स्पीन को सेन्सर होता है? A) EBD B) ECU C) TCS D) ELSD 18 / 3518. Q. Which device permits air to the air brake system? | एयर ब्रेक सिस्टम को कौन सा उपकरण हवा की अनुमति देता है? A) Hand control valve | हैण्ड कन्ट्रोल वाल्व B) Spring brake actuator | स्प्रिंग ब्रेक एक्यूएटर C) System protection valve | सिस्टम बचाव वाल्व D) Brake valve | ब्रेक वाल्व 19 / 3519. Q. What is the type of braking system? | चित्र में, किस प्रकार का ब्रेक सिस्टम है? A) Disc brake | डिस्क ब्रेक B) Drum brake | ड्रम ब्रेक C) Air brake | एयर ब्रेक D) Hydraulic brake | हाइड्रोलिक ब्रेक 20 / 3520. Q. What is the pre caustionery measures to be adapted while removing secondary piston to prevent damage? | क्षति को रोकने के लिए द्वितीयक पिस्टन को हटाने के दौरान अनुकूलित किए जाने वाले पूर्व दहन के उपाय क्या हैं? A) Remove the circlip before | पहले सरक्लिप को हटा दें B) Remove the retaining spring before | पहले रिटैनिंग रिलेटिंग स्प्रिंग को हटा दें C) Remove the stopper bolt before | पहले स्टापर बोल्ट को हटा दें D) Remove the return spring before | पहले रिटने स्प्रिंग को हटा दें 21 / 3521. Q. What is the advantage of TCS/ELSD brake circuit of wheel? | व्हील में TCS/ELSD ब्रेक सर्किट का क्या नाम है? A) Reduce the pressure at wheel cylinder | व्हील सिलेण्डर का प्रैशर कम करना B) Reduce fluid pressure | फल्यूड प्रैशर का कम करना C) Automatic adjustment of engine torque to the grip rates | ग्रिप दरों में इंजन टॉर्क का स्वचालित समायोजन D) Avoid wheel lockup by releasing pressure | प्रैशर को रिलिज करके व्हील लॉक को बचाना 22 / 3522. Q. What is the material used to make brake drum? | ब्रेक बनाने के लिए किस धातु का प्रयोग किया जाता है? A) Stainless steel | स्टैनलैस स्टील B) High carbon steel | हाईकार्बन स्टील C) Special type castiron | स्पेशल टाईप कास्ट आयरन D) High speed steel | हाई स्पीड स्टील 23 / 3523. Q. Where the non-return valve is located in the centre feed master cylinder? | सेन्टर फीड मास्टर सिलेण्डर में नॉन रिटर्न वाल्व कहाँ फिट होता है? A) On the reservoir | रिजर्वायर पर B) On the cylinder head | सिलेण्डर हैड पर C) On the bypass port | बाईपास वाल्व पोर्ट D) On the pistons head | पिस्टन हैड पर 24 / 3524. Q. What is the function of traction control system? | ट्रेक्शन कन्ट्रोल सिस्टम का क्या उदेश्य है? A) Prevent wheel spinning | व्हील स्पीनिंग को रोकना B) Release the pressure to expansion tank | एक्सपेंशन टैंक का प्रेशर कम करना C) Reduce the engine torque | इंजन टार्क को कम करना D) Reduce steering effort | स्टीयरिंग प्रयास कम करें 25 / 3525. Q. How the slip ratio is calculated in the ABS? | ए. बी. एस. में स्लिप अनुपात कैसे गणना की जाती है? A) Velocity speed – Wheel speed x 100 / Vehicle । (वेग स्पीड - व्हील स्पीड) x 100/वाहन B) Wheel speed - Vehicle speed x 100 / .Velocity । ( व्हील स्पीड - वाहन स्पीड) x 100 / वेग C) Velocity speed - Wheel speed x 100 / Vehicle speed । (वैग गति - व्हील स्पीड) x 100/वाहन स्पीड D) Vehicle speed – Velocity speed x 100 / Wheel speed । (व्हीकल स्पीड - वेग गति) x 100/ व्हीकल स्पीड 26 / 3526. Q. Which principle is applicable for hydraulic brakes? | हाइड्रोलिक ब्रेक सिस्टम पर कौन सा नियम लागू होता है? A) Pascals law | पास्कल का नियम B) Boyls law | ब्याल्स का नियम C) Newton's law of motion | न्यूटन का गति का नियम D) Hooke's law | हुक्स का नियम 27 / 3527. Q. What is the type of brake? | चित्र में, किस प्रकार का ब्रेक है? A) Integral type | इन्टिग्रल टाइप B) Multiplier type | मल्टी प्लायर C) Pedal assisted type | पैडल एसिस्टिड टाइप D) Air assisted power brakes | एपर एसिस्टिड पावर 28 / 3528. Q. What is the type of master cylinder? | निम्न चित्र में किस प्रकार का मास्टर सिलेण्डर दिया है? A) Tandem master cylinder | टेण्डम मास्टर सिलेण्डर B) Centre feed master cylinder | सेन्टर फिट मास्टर सिलेण्डर C) Tank type master cylinder | टैंक टाइप मास्टर सिलेण्डर D) Single barrel master cylinder | सिगंल बैरल मास्टर सिलेण्डर 29 / 3529. Q. How the EBD (Electronic Brake Force Distribution) failure indicated to the driver? | EBD ( इलेक्ट्रोनिक ब्रेक फोर्स डिस्ट्रीब्यूशन) ड्राइवर को कैसे पता चलता है? A) Peep sound in the cabin | केबिन से पीप की आवाज होना B) Indication lamp the dash board | डेशबोर्ड पर लैम्ब का दर्शाना C) Glowing the parking lamp | पार्किंग लैम्प का चमकना D) Flickering the tail lamp | टेल लाईट का चमकना 30 / 3530. Q. What is the name of power assisted servo brake? | चित्र में, पावर एसिटेड ब्रेक में कौन सा ब्रेक है? A) Vacuum suspended power brakes | वेक्यूम सस्पेडिंड पावर ब्रेक B) Air suspended power brakes | एयर संस्पेडिड पावर ब्रेक C) Vacuum assisted power brakes | वेक्यूम एसिस्टिड पावर ब्रेक D) Electro hydraulic brake system | इल्कट्रोहाइड्रोलिक ब्रेक सिस्टम 31 / 3531. Q. What is the name of device used in the braking system? | चित्र में दर्शाए उपकरण का नाम बताए जो चित्र में दर्शाया गया है? A) Brake proportioning valve | ब्रेक प्रोस्पोस्निंग वाल्व B) Master cylinder | मास्टर सिलेण्डर C) Reservoir | रिजवीयर D) Piston | पिस्टन 32 / 3532. Q. What is the binding material used in organic brake lining? | आगेनिक ब्रेक लाइनिंग में बाइडिंग मेटीरियल कौन सा होता है? A) Resin | रेसिन B) Mica | माइका C) Asbestos | एसबास्टॉस D) Fibre glass | फाइबर ग्लास 33 / 3533. Q. What is the name of device used in air brake system? | चित्र में दर्शाए गए, एपर ब्रेक प्रयोग किए जाने वाले भाग का क्या नाम है? A) Brake valve | ब्रेक वाल्व B) Brake chamber | ब्रेक चैम्बर C) Brake chamber | ब्रेक चैम्बर D) Unloader valve | अनलोडर वाल्व 34 / 3534. Q. What is the name of part marked as 'x' in the slack adjuster for 's' cam brake? | 's' कैम ब्रेक में, स्लेक एडजस्टर में 'x' द्वारा दर्शायाए गए भाग का नाम क्या है? A) Brake cam | ब्रेक कैम B) Adujsting nut | एजस्टिंग नट C) Brake drum | ब्रेक ड्रम D) Cam roller | कैम रौलर 35 / 3535. Q. What is the name of part marked as 'x' in the mechanical brake? | मकैनिकल ब्रेक में 'x' चित्र में किसे दर्शाया जाता है? A) Brake drum | ब्रेक ड्रम B) Brake shoe retracting spring | ब्रेक शू रिट्रेक्टिंग स्प्रिंग C) Pedal return spring | पैडल रिर्टन स्प्रिंग D) Brake pedal | ब्रेक पैडल Your score is Facebook Restart